Pular para o conteúdo
Goiânia - Goiás
(62) 9 8101-0442
Home
Portfólio
Projetos
Sobre Nós
Contato
Home
Portfólio
Projetos
Sobre Nós
Contato
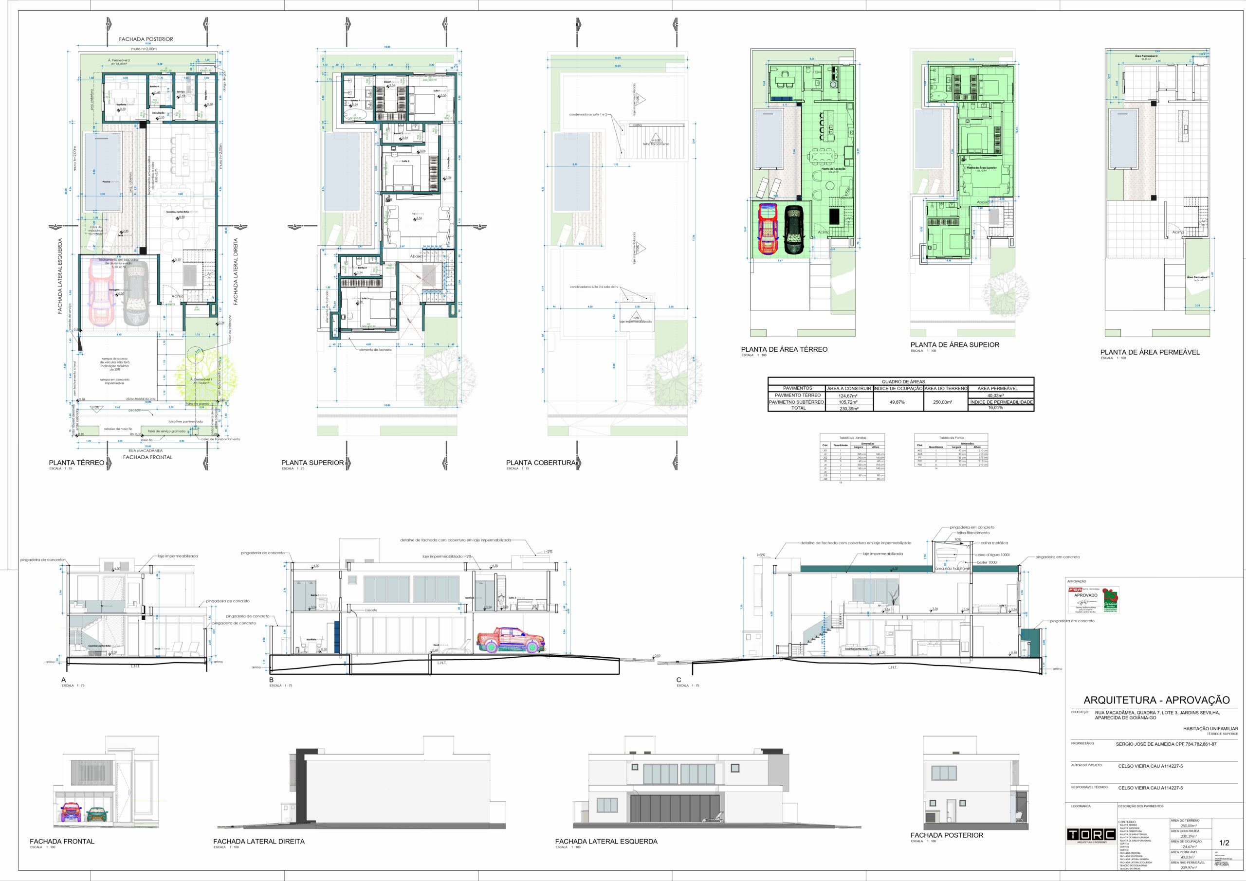
CONDOMÍNIO RUA MACADÂMIA - JARDINS SEVILHA
Powered by
Joinchat
Olá 👋
Podemos ajudar você?
Open chat